1 - Zimmer Wohnung

Die 1 - Zimmer Wohnungen befinden sich im Erdgeschoss.
Grösse: 33,20 Quadratmeter.

2 - Zimmer Wohnung

Die 2 - Zimmer Wohnungen befinden sich im Erdgeschoss.
Grösse: 65,95 Quadratmeter.

3,5 - Zimmer Wohnung

Die 3,5 - Zimmer Wohnungen befinden sich im 1. - 6. Stockwerk.
Grösse: 83,15 Quadratmeter Wohnraum plus 16,45 Quadratmeter Balkon-Fläche.

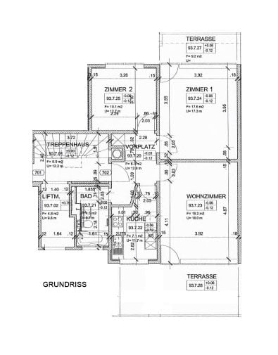
4,5 - Zimmer Wohnung

Die 4,5 - Zimmer Wohnungen befinden sich im 1. -6. Stockwerk.
Grösse: 99,60 Quadratmeter Wohnraum plus 16,45 Quadratmeter Balkon-Fläche.

Dach Wohnungen

Die Dach Wohnungen liegen im 7. Stockwerk.
Grössen:
- 65,00 Quadratmeter Wohnraum plus 28,33 Quadratmeter Terrassen-Fläche.
- 80,00 Quadratmeter Wohnraum plus 28,33 Quadratmeter Terrassen-Fläche.

Melde dich zur Interessenteniste an

©2022 Wohngenossenschaft zu den drei Schlüsseln. Alle Rechte vorbehalten.

Offline Website Builder